Redondo Beach Historic Library
Redondo Beach Historic Library Renovation
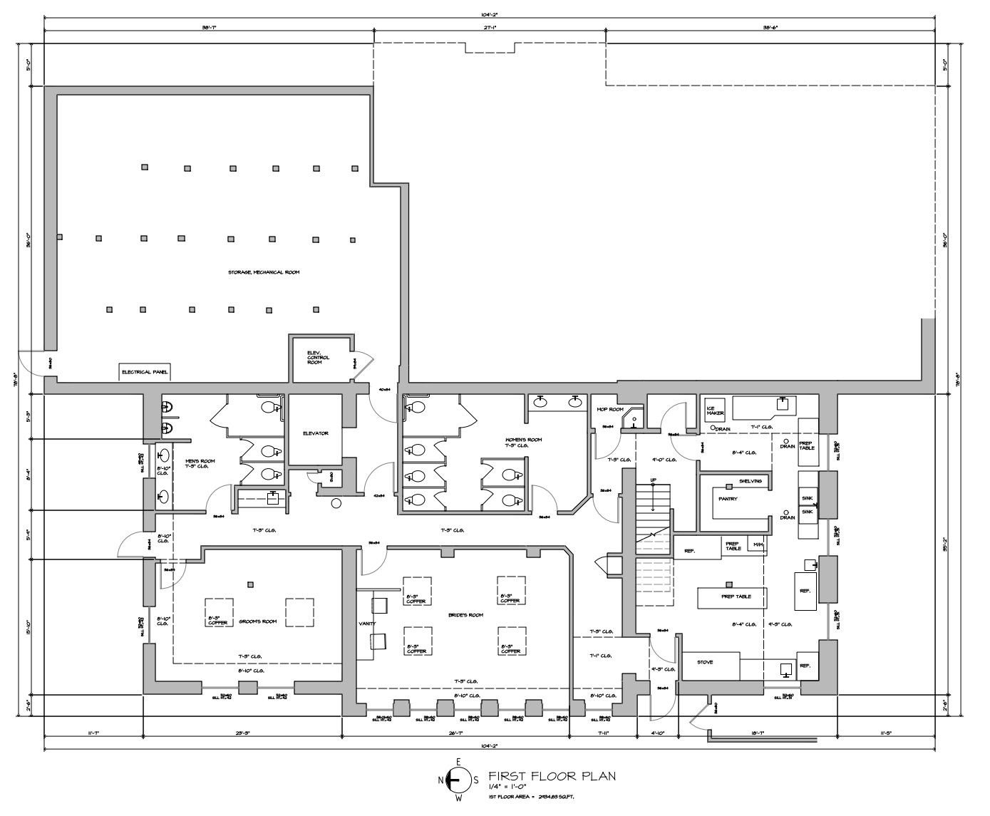
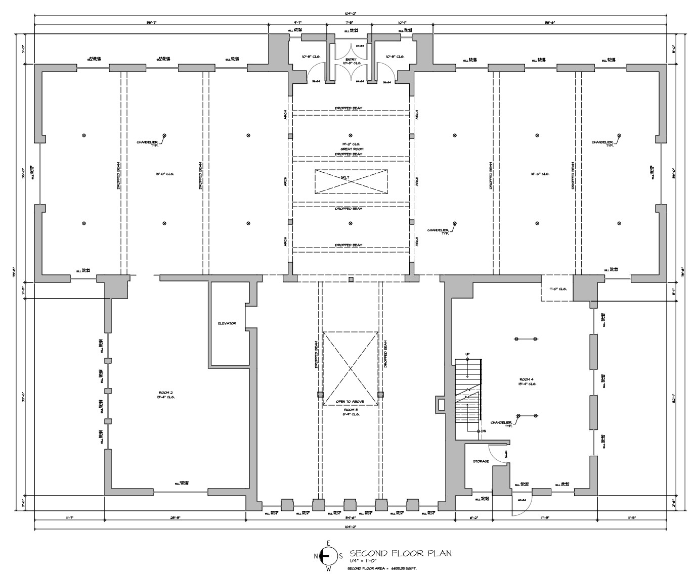
Originally built in 1930, the historic Redondo Beach Library is set to undergo a renovation to become a wedding reception venue. We were honored to have the opportunity to 3D scan this beautiful building and draw the as-built plans.
first step
First we 3D scan the building.
3d modeling
The next step is to create a 3D model in CAD.

